Autorius
Kubinis metras, Janina Avreicevič, Eivina Lazickaitė
NUOTRAUKŲ AUTORIUS
Norbert Tukaj
METAI
2019
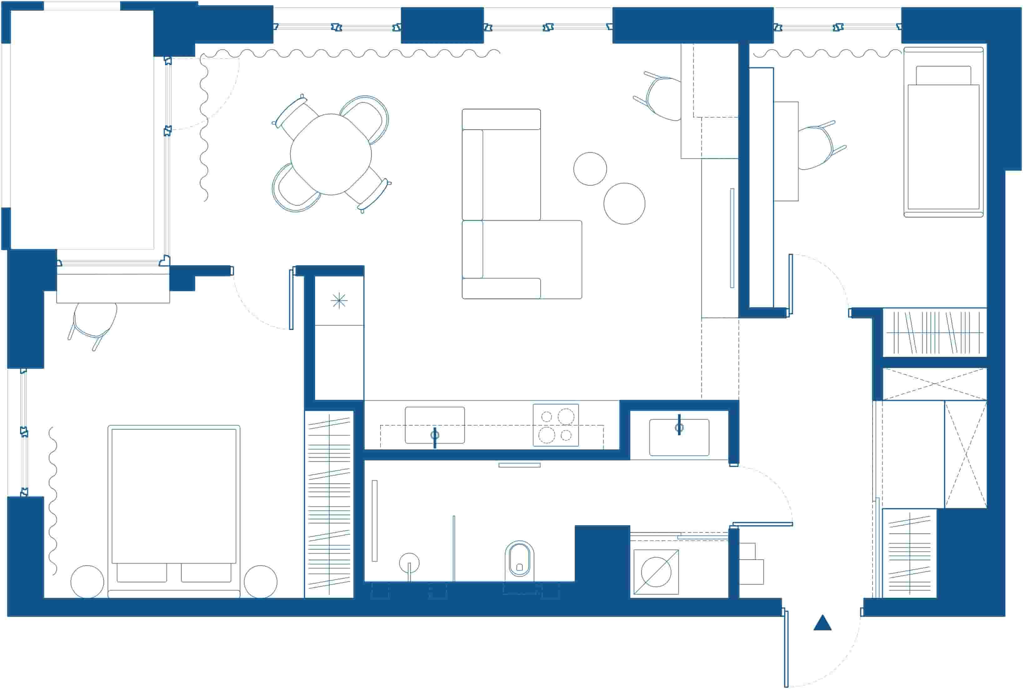
Drąsus, tuo pačiu jautrus interjeras. Butas skistomas funkcinėmis zonomis, joms priskiriamos skirtingos spalvinės nuotaikos. Keli akcentai, kurie keliauja per visus namus ir vėl kartojasi, kaip ciklas. Lygios, vienspalvės vertikalios plokštumos, šviesus medis ir pasteliniai atspalviai. Visa interjero energija perkeliama į skirtingas grindų dangas – dvigubos eglutės, pailgų ir kvadratinių plytelių ritmika. A bold and at the same time tender interior. The apartment is divided into functional zones and assigned different color moods. Multiple accents that travel through whole interior and repeats as a cycle. Smooth, monochrome vertical surfaces, light wood and pastel colour shades. While all the energy of the interior is transferred to different floor coverings - double herringbone, rectangle and square tiles.







