
Autorius
Case Studio for Architecture
Nuotraukų autorius
Case Studio for Architecture
Metai
2025
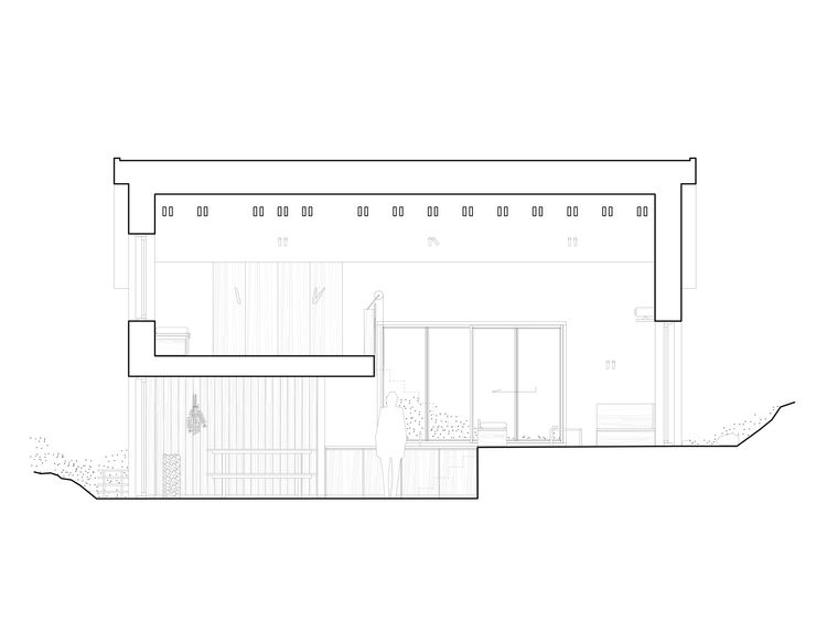
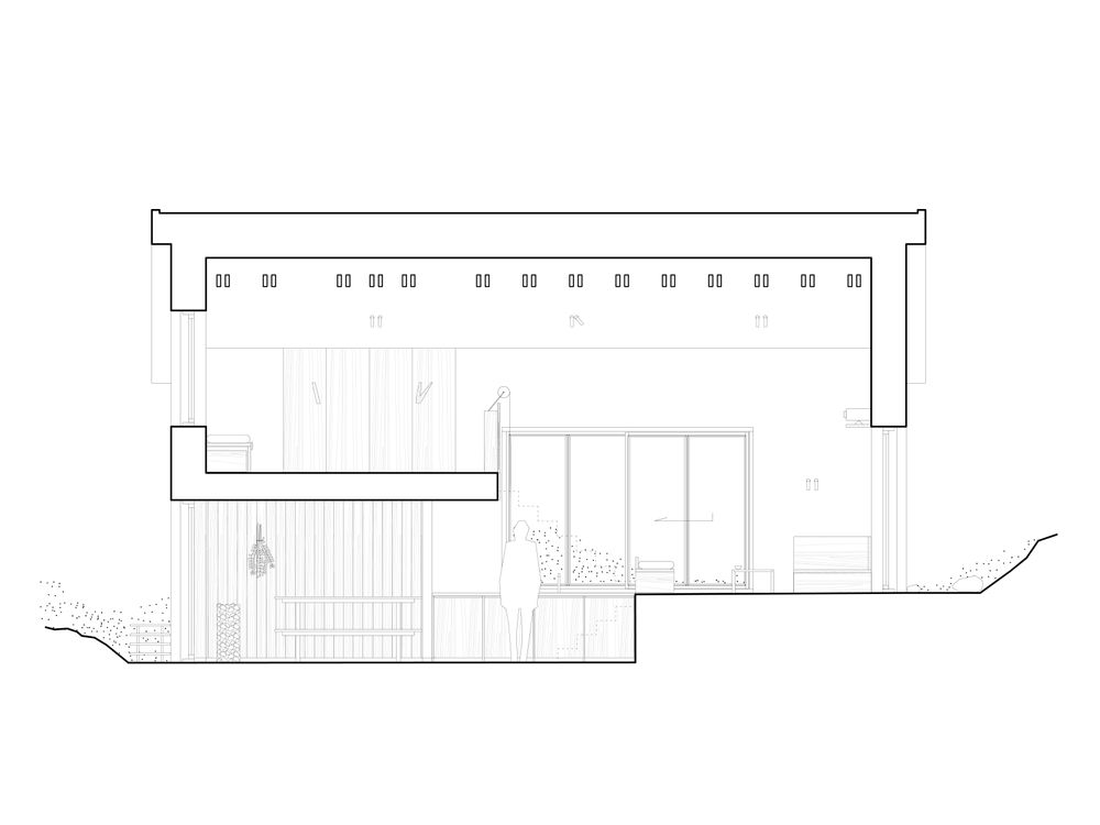
Tegyvuoja pušis! Toks artimas, bet kartu ir primirštas medis lietuviškuose interjeruose. Kuršių nerijoje pušys poilsiautoją lydi iki pat jūros, siūbuoja pro jų langus ir pasitinka senose žvejų trobose. Šiame vasarnamyje Preiloje - grindys, langai ir baldai pagaminti iš pušies masyvo. Čia ji kuria vietinę, ramią, poilsinę atmosferą. Apie detales interjere - miškuose rinktos rankenos nugulė ant spintų durų ir tarnauja kaip pakabos. Atspindinčiuose paviršiuose netikėtai pasimato kopa ar preiliškas stogas, o pušiniuose languose įsirėmina smėlio kopos. Tikimės, kad sugrįš meilė ir kantrybė šiam vietiniam medžiui ir pušį vėl matysime, liesime ir jausime lietuviškuose interjeruose.
Long live the pine! A tree so close to us, yet often forgotten in Lithuanian interiors. On the Curonian Spit, pine is ever-present: it leads the way to the sea, sways beyond the windows, and greets visitors in an old fisherman’s cottage. In this Preila summerhouse, floors and furniture are crafted from solid pine. Softer than many other woods, pine still proves itself as a resilient and beautiful material. It brings with it an atmosphere of ease and leisure. Some notes on details - polished stainless steel surfaces unexpectedly reflect a dune, a Preila rooftop or a pine tree, adding glimpses of the landscape indoors. Branches collected in the forest were transformed into handles and hooks. We hope that love and patience for this native tree will return, and that pine will once again be seen, touched, and felt in Lithuanian interiors.
Specialiai konkursui skirta rubrika su dalyvių darbais. Publikuojamą medžiagą sudarys interjerų nuotraukos, brėžiniai, iliustracijos, aprašymas.
Diskusija ir šventinis apdovanojimų vakaras. Jo metu įteikiami prizai geriausių interjerų autoriams.
Portalo Lrytas skaitytojų favorito rinkimai. Specialiame polapyje vyksta balsavimas už labiausiai patikusį interjerą.
Interjero architektūros konkurso „Mano erdvė 2025” nominacijos Lrytas skaitytojų favoritas rinkimų organizatorius (toliau – rinkimai) yra UAB Lrytas toliau vadinamas „organizatoriumi“. Šios taisyklės (toliau – taisyklės) nustato rinkimų sąlygas. Rinkimų tikrumą ir priežiūrą, t.y. informacijos apie rinkimus ir skundo tvarkymą, vykdo organizatoriaus darbuotojai. Organizatorius turi teisę vienašališkai pataisyti arba pakeisti šias taisykles.
Konkurso dalyviai yra visi interjerų darbus specialioje platformoje pateikę asmenys rugsėjo 8–spalio 10 dienomis.
Balsavimas vyksta specialiame portalo Lrytas polapyje nuo spalio 11 iki spalio 23 d. 23:59 val.
Balsuoti leidžiama vieną kartą, naudojant unikalų lietuviško IP adreso ir naršyklės derinį. Naudojant tokį derinį, balsuoti galima už visus pasirinktus dalyvius. Pastebėjus nenatūralų balsų kitimą, balsai gali būti perskaičiuoti. Jei identifikuojama, kad balsų augimas yra nenatūralus ir atliekamas automatiniais įrankiais, balsai gali būti eliminuojami. Užfiksavus nenatūralų balsų augimą ir identifikavus priežastis, apie tai informuojamas projekto „Mano erdvė 2024” dalyvis, dalyvaujantis rinkimuose. Užfiksavus pakartotinius pažeidimus, rinkimų dalyvis gali būti pašalintas iš rinkimų.
Konkurso nugalėtoju tampa daugiausiai portalo Lrytas lankytojų balsų surinkęs interjeras, o jo autorius (-iai) bus apdovanoti 5 000 eurų vertės reklamos paketu portale Lrytas ir specialiais rėmėjų prizais „Mano erdvė 2025“ apdovanojimų ceremonijos metu.
Organizatorius neatsako už telekomunikacijos ryšių, serverių, sąsajų ir naršyklių veikimo sutrikimus. Organizatorius įsipareigoja informuoti laimėjusio interjero autorių per 2 dienas nuo balsavimo pabaigos.
Visus skundus, susijusius su rinkimų organizavimu, dalyviai ar balsuotojai turėtų pateikti raštu organizatoriui rinkimų metu. Skundas, pateiktas po nurodyto konkurso balsavimo termino, neturi teisinio poveikio. Rašytiniame skunde turi būti nurodytas dalyvio vardas, pavardė, telefono numeris ir išsamus skundo aprašymas bei pagrindimas. Skundai bus apsvarstyti per 5 d.d. Atsakymai į skundus bus pateikiami raštu.
Iki 9 fotografijų (formatas.jpg 300 dpi, ne mažiau nei 2 MB ir ne daugiau nei 15 MB, nuo 3000 px). Viena fotografija negali būti kelių fotografijų montažas.
Iki 2 brėžinių (formatas .jpg 300 dpi, ne daugiau nei 15 MB, nuo 2000 px).
Aprašomasis tekstas: objekto pavadinimas, adresas (miestas), autoriai, įgyvendinimo metai, fotografijų autorius, trumpas aprašymas lietuvių ir anglų kalbomis privalomas.
Jei pateikiama daugiau kaip 9 iliustracijos (nuotraukos+brėžiniai), parodos organizatoriai turi teisę atsirinkti iki 9 publikuojamų iliustracijų.
SVARBU: jei kūrėjai papildomai pristatys 1 pastato iš išorės nuotrauką bei 1 urbanistinio konteksto nuotrauką tai bus laikoma privalumu. Balsavimo metu ji nebus rodoma, tačiau ši nuotrauka vertinimo komisijai padės geriau įvertinti interjero kontekstą.
Vienas autorių kolektyvas (autorius) konkursui gali pateikti ne daugiau kaip tris darbus, įgyvendintus 2024/2025 metais. Jei autoriai skirtingi, bet yra vienos įmonės atstovai, jų sukurti darbai skaičiuojami ne pagal įmonės pavadinimą, o pagal autorių grupę.
2024-ujų metų darbai, dalyvavę praėjusių metų konkurse „Mano erdvė“, negali būti pateikiami antrą kartą.
Kontaktų anketoje būtina pateikti bent vieno iš autorių telefono numerį ir el. pašto adresą. Jie nebus publikuojami
Konkurso „Mano erdvė“ 2025 dalyviai neprieštarauja (sutinka), kad jų darbų nuotraukos būtų naudojamos šio konkurso viešinimui – portale Lrytas, taip pat socialinėje medijoje.
Darbų priėmimas vyksta iki spalio 10 d. 23.59 val.





Nepraleiskite svarbiausių naujienų
Kopijuoti, dauginti, platinti galima tik gavus raštišką UAB „Lrytas“ sutikimą.